販売物件
SALE中銀第2小石川マンシオン307号室
販売中
エリア:東京23区
◎南北線・丸の内線「後楽園」駅 徒5歩分・三田線・大江戸線「春日」駅 徒歩6分、複数駅・路線利用可・東京ドームシティ・
小石川後楽園まで徒歩10分、文京区立礫川公園まで徒歩2分の好立地!
◎総戸数40邸×清水建設施工×(株)東京建物アメニティサポート全部委託管理×2021年5月 屋根防水工事等大規模修繕工事実施済につき、管理体制良好!
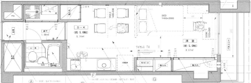
キッチン:システムキッチン交換 ※浄水器付水栓
(パナソニック/W2100)
浴室 :3点ユニットバス交換
(TOTO社製BW1116)
床材 :全室フローリング張替(ノダ社製)
玄関・フロアタイル張替(東リ社製テラマッタ)
クロス :壁・天井全面張替(一部アクセントクロス有)
建具 :全室交換
その他 :洗濯防水パン設置、給湯器交換(オートタイプ20号)
録画機能付カラーTVモニター付インターホン交換
ダウンライト新設、スイッチパネル交換、配管更新
火災警報器交換、カーテンレール交換
2018年7月完了
アクセスマップACCESS MAP
お問い合わせCONTACT
販売物件の内覧や、マンション売却に関するご相談など
お気軽にお問い合わせください。
03-5843-5710







