販売物件
SALEロイヤル中村橋
売約済
エリア:東京23区
◎新耐震基準適合マンション!最寄駅まで徒歩5分の好立地物件!
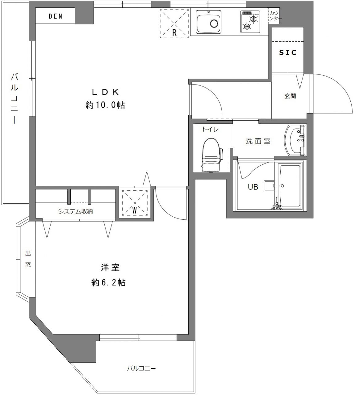
◎3方向角住戸につき、採光・通風良好!
【リフォーム内容】
キッチン:システムキッチン交換 ※食洗器付 ※水栓型浄水器付
(パナソニック/リビングステーションV 1800W)
浴室 :追焚・浴室乾燥機能付ユニットバス交換
(リクシル社製BW1215)
トイレ :温水洗浄機能付トイレ交換(リクシル社製アメージュV)
洗面台 :三面鏡付洗面化粧台交換
(パナソニック社製シーライン750W)
床材 :全室フローリング張替(ノダ社製アートクチュールオーク柄キャラメル色)
玄関・水廻りフロアタイル張替
クロス :壁・天井全面張替(一部アクセントクロス有)
建具 :全室交換(パナソニック社製ベリティス チェリー柄)
その他 :洗濯防水パン設置、給湯器交換(オートタイプ20号)
録画機能付カラーTVモニター付インターホン交換
ダウンライト新設、スイッチパネル交換、洋室AC先行配管
網戸張替え、SIC新規造作、カーテンレール交換
アクセスマップACCESS MAP
お問い合わせCONTACT
販売物件の内覧や、マンション売却に関するご相談など
お気軽にお問い合わせください。
03-5843-5710





























