販売物件
SALE中野フラワーマンション
売約済
エリア:東京23区
空間デザイナー 設計のアトリエのような白い空間
◎新規内装デザインリフォーム!
◎7階部分・最上階南西角住戸につき、陽当り・眺望・通風良好!
◎平成26年外壁等大規模修繕工事実施済!
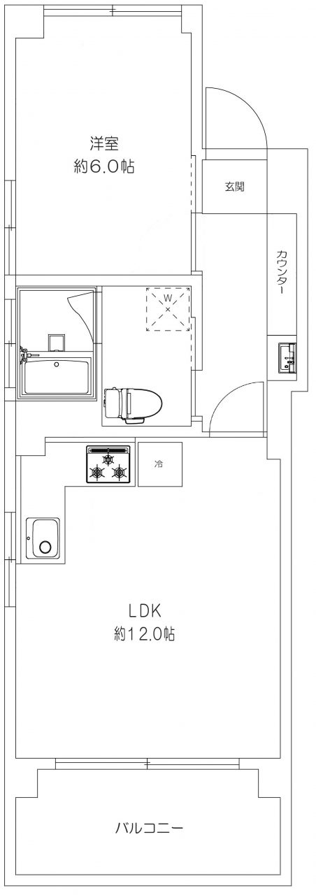
【リフォーム内容】
キッチン:L字型システムキッチン交換
浴室 :追焚・浴室乾燥機能付ユニットバス交換
トイレ :温水洗浄機能付トイレ交換
洗面台 :洗面化粧台交換
床材 :全室無垢フローリング張替
壁 :全面塗装
天井 :天井落とし・全面塗装
建具 :全室交換
その他 :洗濯防水パン交換、給湯器交換(オートタイプ16号)
録画機能付カラーTVモニター付インターホン交換
スイッチパネル交換
令和3年2月14日完了
お問い合わせCONTACT
販売物件の内覧や、マンション売却に関するご相談など
お気軽にお問い合わせください。
03-5843-5710








