販売物件
SALE鷺宮兼六ハイム
売約済
エリア:東京23区
◎1階部分につき、階下への足音を気にせず安心!
南向き・前面は道路につき、陽当良好!
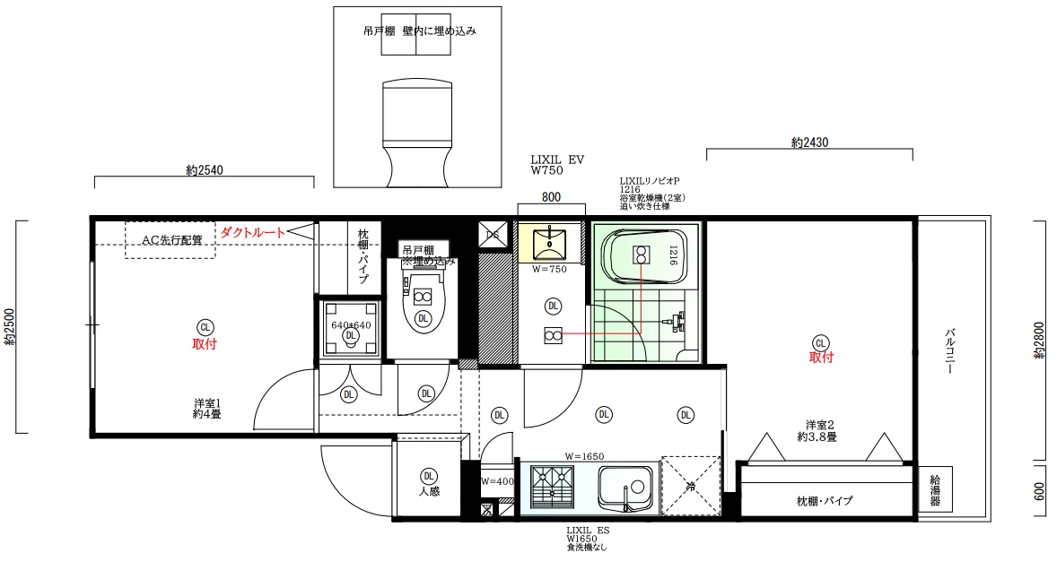
【リフォーム内容】
キッチン:システムキッチン交換 ※浄水器付水栓
(パナソニック/リビングステーションV W1800)
浴室 :追焚・浴室乾燥機能付ユニットバス交換
(リクシル社製BW1116)
トイレ :温水洗浄機能付トイレ交換(リクシル社製アメージュV)
※吊戸収納新規設置
洗面台 :洗面化粧台交換(パナソニック社製シーラインW600)
床材 :全室フローリング張替
(ノダ社製アートクチュールオーク柄キャラメル色)
玄関・水廻りフロアタイル張替
クロス :壁・天井全面張替(一部アクセントクロス有)
建具 :全室交換(パナソニック社製ベリティス チェリー柄)
その他 :洗濯防水パン設置、給湯器交換(オートタイプ20号)
録画機能付カラーTVモニター付インターホン交換
ダウンライト新設、スイッチパネル交換、配管更新
窓ガラス交換、カーテンレール交換
※上記内装仕様は変更になる可能性があります。
令和5年12月20日完了
アクセスマップACCESS MAP
お問い合わせCONTACT
販売物件の内覧や、マンション売却に関するご相談など
お気軽にお問い合わせください。
03-5843-5710











