販売物件
SALEたなドエリングA棟
売約済
エリア:神奈川
◎「田奈」駅 徒歩6分・急行停車駅「青葉台」駅 徒歩12分、
複数駅利用可の好立地
◎3階部分・南東向きにつき、陽当り・眺望良好!
【リフォーム内容】
キッチン:システムキッチン交換 ※浄水器付水栓
(パナソニック/リビングステーションV W1800)
浴室 :追焚・浴室乾燥機能付ユニットバス交換
(リクシル社製BW1116)
トイレ :温水洗浄機能付トイレ交換(リクシル社製アメージュV)
※吊戸収納新規設置
洗面台 :洗面化粧台交換(パナソニック社製シーラインW600)
床材 :全室フローリング張替
(ノダ社製アートクチュールオーク柄キャラメル色)
玄関・水廻りフロアタイル張替
クロス :壁・天井全面張替(一部アクセントクロス有)
建具 :全室交換(パナソニック社製ベリティス チェリー柄)
その他 :洗濯防水パン設置、給湯器交換(オートタイプ20号)
録画機能付カラーTVモニター付インターホン交換
ダウンライト新設、スイッチパネル交換、配管更新
窓ガラス交換、カーテンレール交換
※上記内装仕様は変更になる可能性があります。
令和6年4月1日完了予定(内装工事中も内見可)
物件情報INFORMATION
| 物件名 | たなドエリングA棟 303 |
|---|---|
| 最寄り駅 | 田園都市線『田奈』駅 徒歩6分 田園都市線『青葉台』駅 徒歩12分 『長津田』駅バス8分 "浅間下"バス停下車 徒歩2分 |
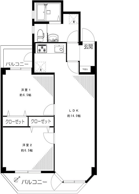
| 間取り | 2LDK |
| 専有面積 | 60.42㎡ |
| 所在階 | 3F |
| 築年月 | 昭和46年2月 |
| 管理費・修繕積立金 | 管理費:13,300円 修繕積立金:4,800円 地代:修繕積立金に含む |
| その他 | 駐車場 : 有(月額 8,500~9,000 円) 駐輪場 : 有(月額 100~300 円) バイク置場 : 有(月額 300~500 円) ペット飼育 : 可(細則有※50cm/10kg/2匹迄) 事務所利用 : 不可 エレベータ : 有 トランクルーム : 有(月額 4,000 円) ※各空き状況要確認 |
アクセスマップACCESS MAP
お問い合わせCONTACT
販売物件の内覧や、マンション売却に関するご相談など
お気軽にお問い合わせください。
03-5843-5710















