販売物件
SALE越前堀永谷マンション 1003号室
売約済
エリア:東京23区
◎「八丁堀」駅 徒歩8分・「茅場町」駅 徒歩10分、「水天宮前」駅 徒歩12分・複数駅・路線利用可の好立地!
◎10階部分・南東向きにつき、陽当り・眺望良好!
◎総戸数183邸×永谷建物管理(株)全部委託管理×平成26年8月外壁等大規模修繕工事実施済につき、管理体制良好!
◎スカイツリーが眺められる新川公園まで徒歩1分!
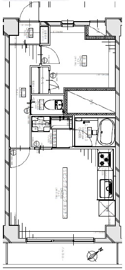
【リフォーム内容】
キッチン:システムキッチン交換 ※浄水器付水栓
(パナソニック/リビングステーションV W2100)
浴室 :追焚・浴室乾燥機能付ユニットバス交換
(リクシル社製BW1216)
トイレ :温水洗浄機能付トイレ交換(リクシル社製アメージュV)
洗面台 :三面鏡付洗面化粧台交換(パナソニック社製シーラインW900)
床材 :全室フローリング張替(ノダ社製アートクチュール メープルペール)
玄関・水廻りフロアタイル張替
クロス :壁・天井全面張替(一部アクセントクロス有)
建具 :全室交換(パナソニック社製ベリティス ホワイトオーク)
その他 :洗濯防水パン設置、給湯器交換(オートタイプ20号)
録画機能付カラーTVモニター付インターホン交換
ダウンライト新設、スイッチパネル交換、配管更新
火災警報器交換、カーテンレール交換
※上記内装仕様は変更になる可能性があります。
令和7年6月29日完了
アクセスマップACCESS MAP
お問い合わせCONTACT
販売物件の内覧や、マンション売却に関するご相談など
お気軽にお問い合わせください。
03-5843-5710












