販売物件
SALEシャトレー幡ヶ谷第2 802号室
売約済
エリア:東京23区
◎安心の耐震基準適合マンション!
◎「幡ヶ谷」駅 徒歩6分、「笹塚」駅 徒歩10分、「新宿」駅バス14分・バス停徒歩6分、複数駅・路線利用可の好立地!
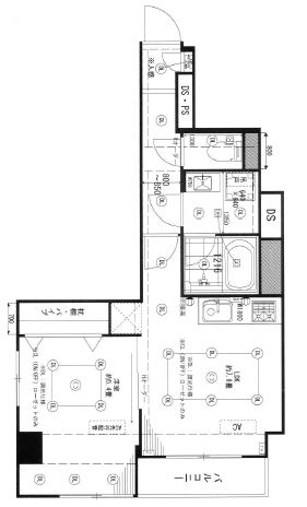
◎8階部分・南西角住戸・南向きにつき、陽当り・眺望・通風良好!
◎総戸数44邸×サンユービルコンサルタンツ(株)委託管理×平成26年外壁等大規模修繕工事実施済につき、管理体制良好!
キッチン:システムキッチン交換 ※浄水器付水栓(リクシル社製ES W1950)
浴室 :追焚・浴室乾燥機能付ユニットバス交換(リノビオ社製BW1216)
トイレ :温水洗浄機能付トイレ交換(リクシル社製アメージュV)
洗面台 :三面鏡付洗面化粧台交換(パナソニック社製シーラインW750)
床材 :全室フローリング張替(大建MYフロア)
玄関・水廻りフロアタイル張替
クロス :壁・天井全面張替(一部アクセントクロス有)
建具 :全室交換(パナソニック社製ベリティス ホワイトオーク)
その他 :洗濯防水パン設置、給湯器交換(オートタイプ20号)録画機能付カラーTVモニター付インターホン交換、ダウンライト新設、スイッチパネル交換、配管更新、火災警報器交換、カーテンレール交換
※上記内装仕様は変更になる可能性があります。
令和7年7月19日完了予定(内装工事中も内見可)
アクセスマップACCESS MAP
お問い合わせCONTACT
販売物件の内覧や、マンション売却に関するご相談など
お気軽にお問い合わせください。
03-5843-5710








