販売物件
SALEシャルマンコーポ柏 406
売約済
エリア:千葉
◎「柏」駅 徒歩10分、利便性の高い好立地!
◎総戸数41邸×東洋コミュニティサービス(株)全部委託管理×
2024年6月大規模修繕工事実施済につき、管理体制良好!
◎4階南向きにつき、陽当り・眺望良好!
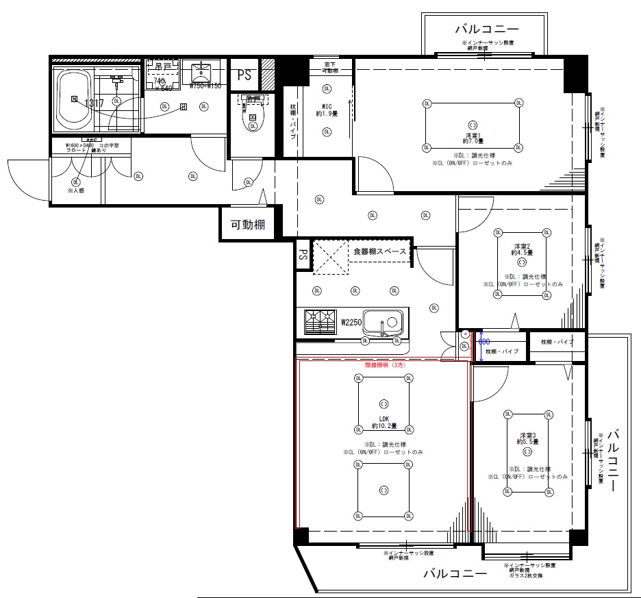
◎新規リフォーム
キッチン:システムキッチン交換 ※浄水器付水栓
(パナソニック/リビングステーションV W1800)
浴室 :追焚・浴室乾燥機能付ユニットバス交換
(リクシル社製BW1116)
トイレ :温水洗浄機能付トイレ交換(リクシル社製アメージュV)
洗面台 :洗面化粧台交換(パナソニック社製シーラインW600)
床材 :全室フローリング張替(ノダ社製アートクチュール メープルペール)
玄関・水廻りフロアタイル張替
クロス :壁・天井全面張替(一部アクセントクロス有)
建具 :全室交換(パナソニック社製ベリティス ホワイトオーク)
その他 :洗濯防水パン設置、給湯器交換(オートタイプ20号)
録画機能付カラーTVモニター付インターホン交換
ダウンライト新設、スイッチパネル交換、配管更新
火災警報器交換、カーテンレール交換
※上記内装仕様は変更になる可能性があります。
令和7年9月27日完了(内装工事中も内見可)
アクセスマップACCESS MAP
お問い合わせCONTACT
販売物件の内覧や、マンション売却に関するご相談など
お気軽にお問い合わせください。
03-5843-5710












