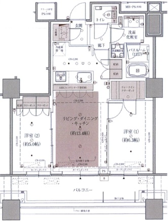
販売物件
SALEアトラスタワー町田 704
売約済
エリア:東京市部
◎横浜線「町田」駅よりデッキ直結で徒歩2分の好立地!
◎平成28年築・安心のオートロック付新耐震基準マンション!
◎総戸数155邸×旭化成不動産コミュニティ(株)全部委託管理×
24時間有人管理・各階ゴミ置き場(24時間ゴミ出し可能)につき管理体制良好!
◎大切なペットと暮らせるマンション!(細則有)
【リフォーム内容】
壁・天井クロス補修、全室LED照明交換
※上記内装仕様は変更になる可能性があります。
令和7年3月25日完了
アクセスマップACCESS MAP
お問い合わせCONTACT
販売物件の内覧や、マンション売却に関するご相談など
お気軽にお問い合わせください。
03-5843-5710









